SİSTEMLER
Seramik Cephe
Sinterflex Cephe
Kompakt Laminat Cephe
Fibercement Cephe
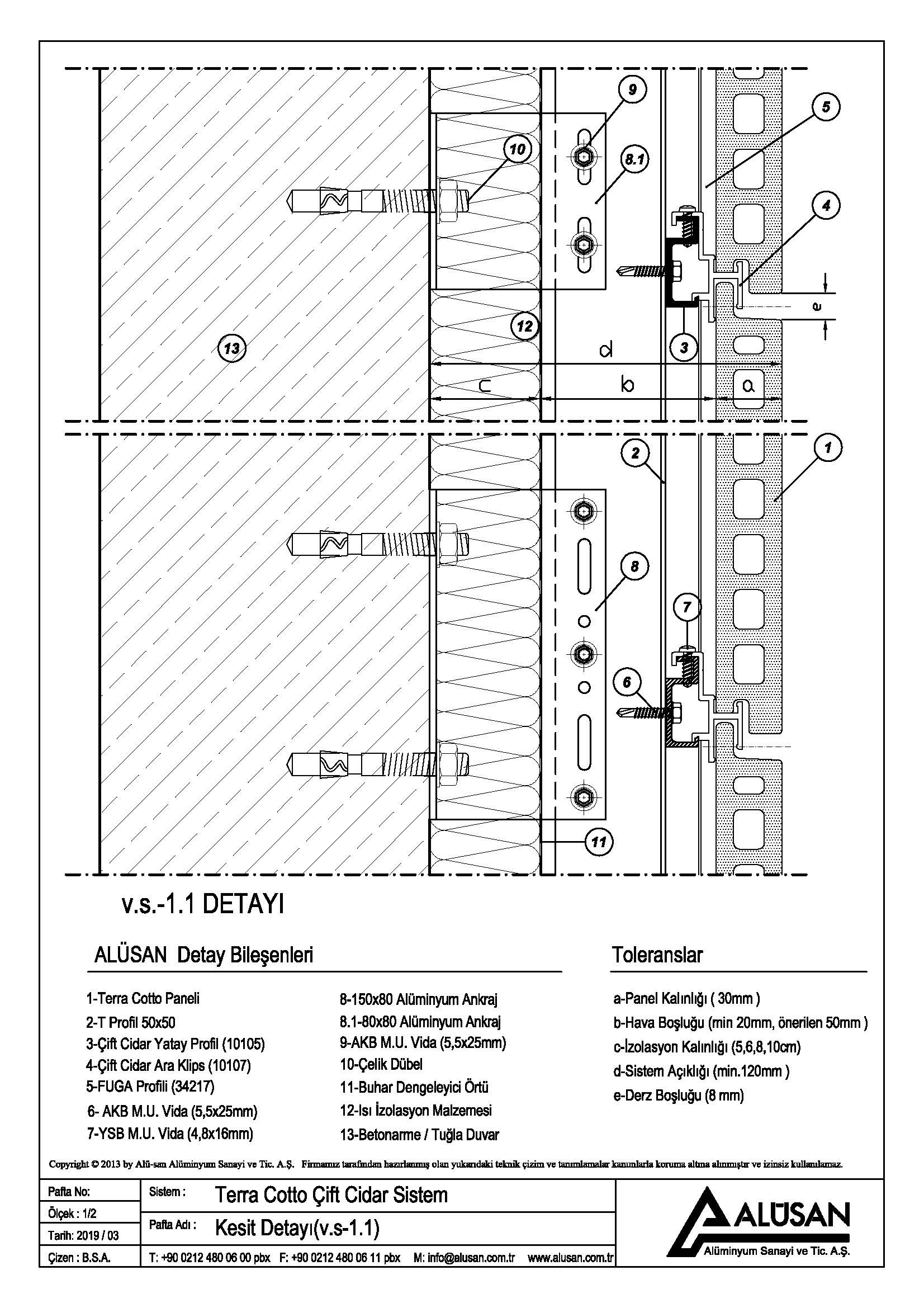
Terra Cotta Cephe
Frontek Cephe
Thermowood Cephe
Çift Cidarlı Sistem
Bu sistemde Alüminyum Braketlerle T Profiller bina cephesine projesine uygun olarak tespit edilir, daha sonra yatay taşıyıcı sistem profili T profiller üzerine monte edilerek alt konstrüksiyon montajı tamamlanmış olur. Çift cidarlı Terracotta paneller özel tip klipsler ve omega formlu düşey fuga profili ile beraber Konstrüksiyon üzerine asılarak Cephe kaplama prosesi tamamlanır.
