SİSTEMLER
Seramik Cephe
Sinterflex Cephe
Kompakt Laminat Cephe
Fibercement Cephe
Terra Cotta Cephe
Frontek Cephe
Thermowood Cephe
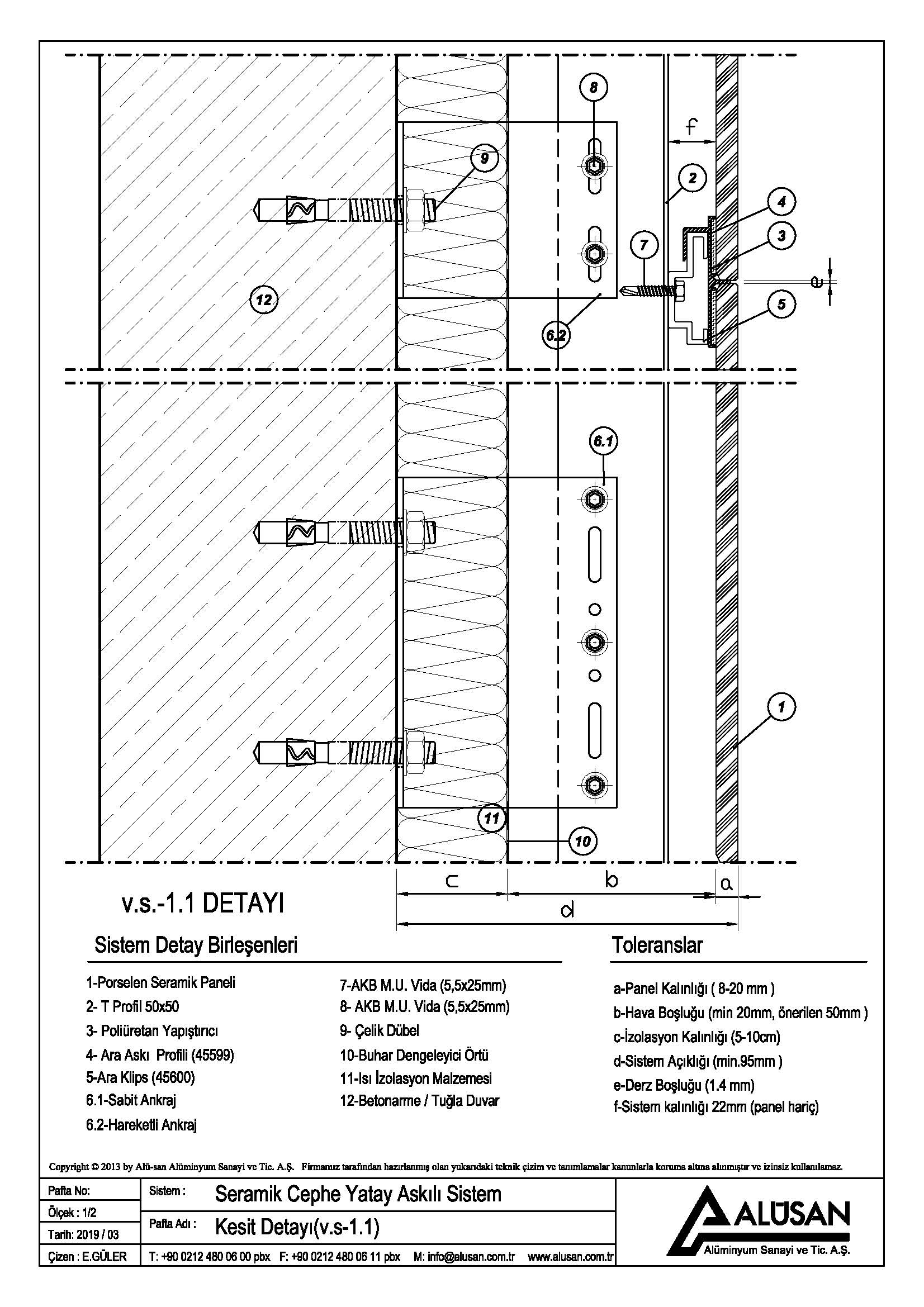
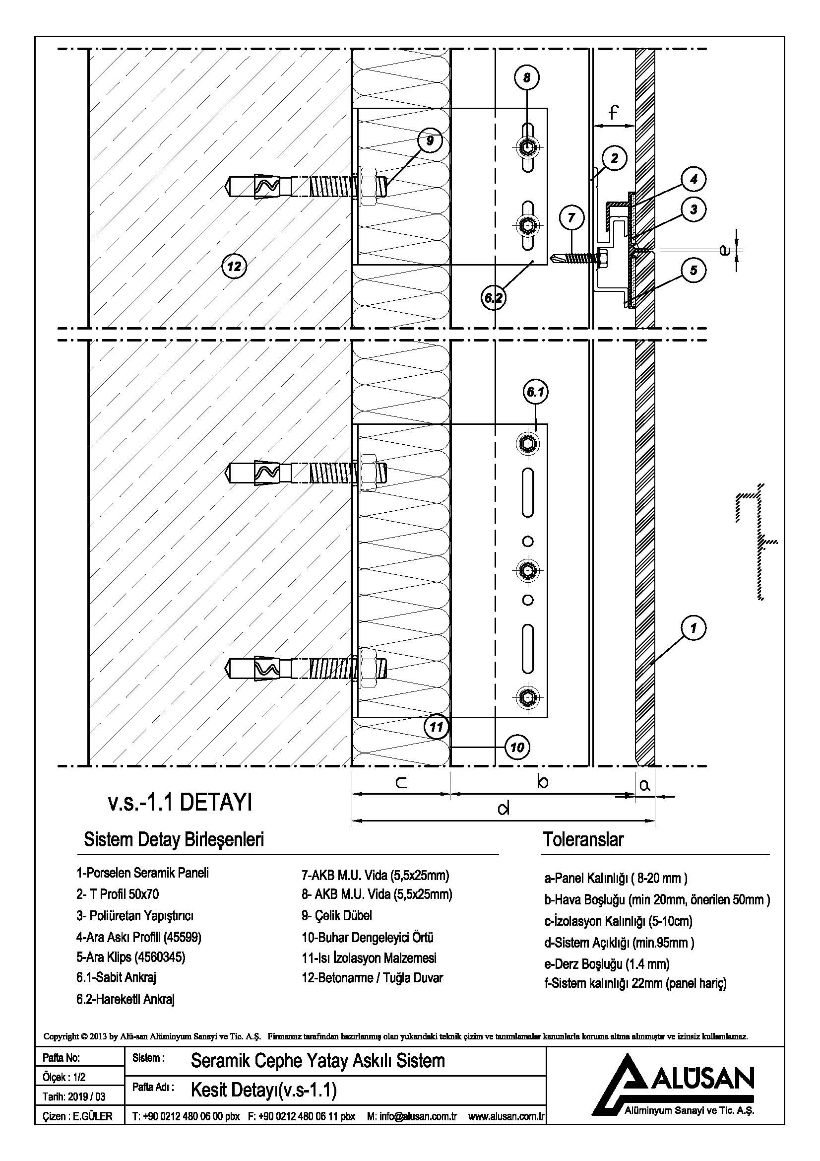
Yatay Askılı Sistem
Yatay Askılı Sistemde alüminyum ankrajlar ve Düşey Taşıyıcı T Profillerden teşkil edilen alt konstrüksiyon üzerine alüminyum klipsler sabitlenir. Seramik Plakalar cepheye üst, ara ve alt yatay profiller kullanılarak bondinglenir. Ve Taşıyıcı klipslere asılarak kaplama işlemi bitirilmiş olur. Bu sistemin en büyük avantajı düşey derzler şaşırtmalı olabilir ve derz genişliği 2mm dir.
