SİSTEMLER
Seramik Cephe
Sinterflex Cephe
Kompakt Laminat Cephe
Fibercement Cephe
Terra Cotta Cephe
Frontek Cephe
Thermowood Cephe
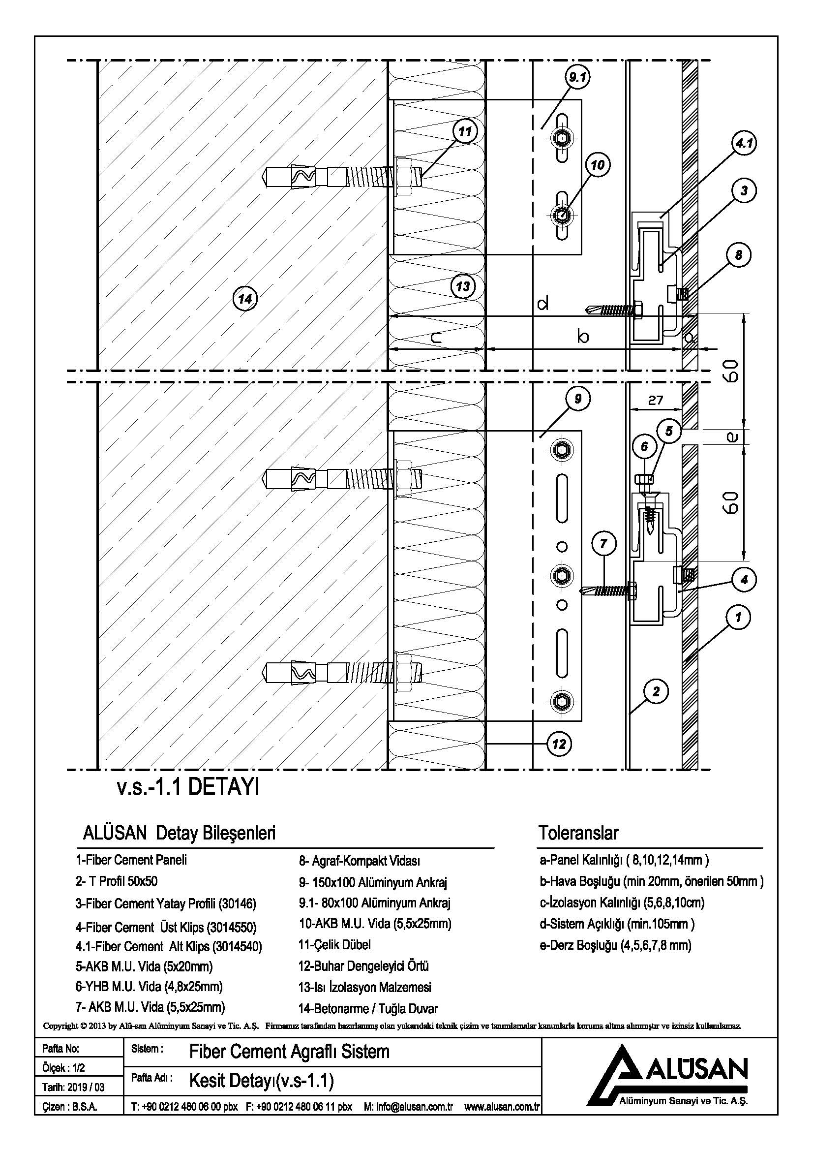
Agraflı Sistem
Bina cephesinde Projesine uygun olarak alüminyum ankrajlar, alüminyum düşey T Profiller ve özel kesitli yatay profillerden teşkil edilen taşıyıcı alt konstrüksiyon üzerine, Fibercement plakalar, arkalarına 4 noktadan tespit edilen agraf klipsleri vasıtası asılır. Bu Sistemde Derzler Açıktır.
