SİSTEMLER
Seramik Cephe
Sinterflex Cephe
Kompakt Laminat Cephe
Fibercement Cephe
Terra Cotta Cephe
Frontek Cephe
Thermowood Cephe
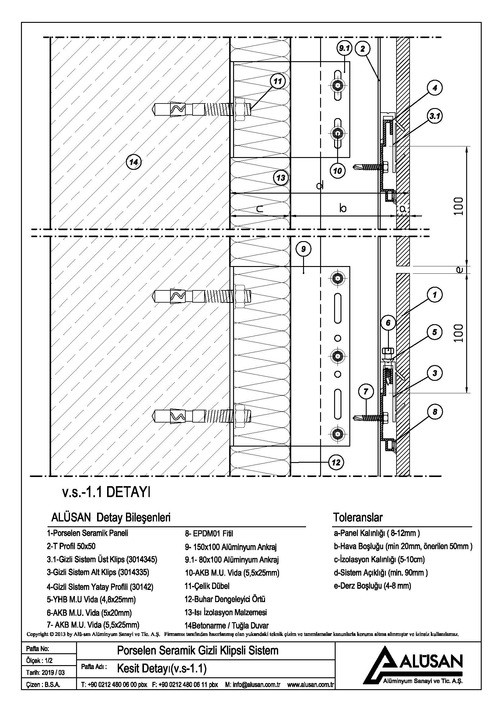
Gizli Kanallı Sistem
Bu sistemde alüminyum ankrajlar ve alüminyum düşey T Profillerden meydana gelen taşıyıcı alt konstrüksiyon cepheye tespit edilir. Seramikler, arka yüzeylerine dört noktadan açılan kırlangıç kanallara takılan özel tip alüminyum gizli klipsler yardımıyla yatay taşıyıcı konstrüksiyona monte edilir. Genellikle 60x60, 60x120, 50x100 cm ebatlarındaki malzemeler ile uygulanması ekonomiktir.
